BUSINESS
CONTENT

業務内容

  • 01

    構造設計

    構造設計とは、建物が地震や風などの外力に耐え、安全かつ機能的に使用できるように骨組み(構造)を計画・設計することです。建築の材料や形状、力の流れを分析し、安心・安全な空間を実現します。構造設計者は、設計の意図を理解し、あらゆる立場の人とコミュニケーションを取りながら、安全性・経済性・施工性のバランスの取れた建築物を設計する重要な役割を担います。

    構造設計 1
    構造設計 2
  • 02

    現場監理

    現場監理とは、設計図書通りに構造体が施工されているかを確認・指導する業務です。鉄筋や鉄骨の寸法・位置、コンクリートの強度、接合部の施工状況などを現場等で確認します。必要があれば施工者や管理者と協議しながら、構造安全性を確保した建物を実現していきます。現場とのコミュニケーション能力と判断力が求められる重要な業務です。

    現場監理 1
  • 03

    耐震診断・補強設計

    耐震診断とは、既存建物の構造図や現地調査、材料試験などに基づき、建物がどの程度の地震力に耐えられるかを解析、評価する業務です。
    補強設計では、耐震診断結果に応じて、耐震性能の向上を目的とし、耐力壁の追加、柱・梁の補強、接合部の改善など、補強後の建物の耐震性や機能性、補強工事の施工性を考慮し最適な補強方法を提案します。

    耐震診断・補強設計 1
    耐震診断・補強設計 2
  • 04

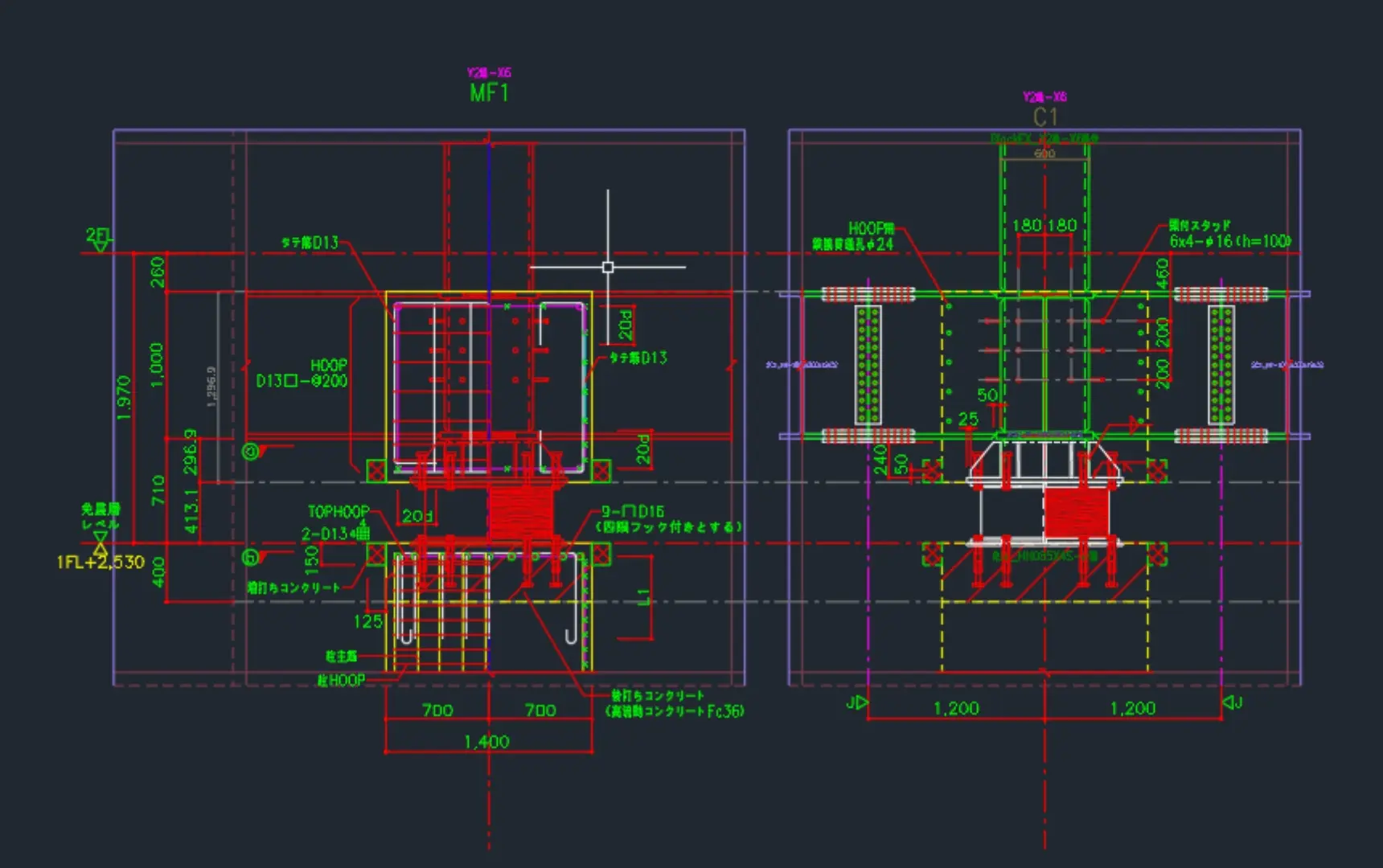
    図面作成

    構造設計の結果を基に構造図を作成します。CAD・BIMソフトを使って、柱・梁・基礎の位置だけでなく各部材のサイズ、配筋、各部の詳細など構造に関わる多くのこと記載します。設計者の意図を正確にくみ取りながら誰が見ても理解しやすい図面を作成します。

    図面作成 1
    図面作成 2